real estate
物件情報
鯖江市
ゼロスマ・ゼロスマZEH
土地付建物分譲
鯖江市杉本町 ゼロスマタウン
トリプルガラス標準の高性能GX志向型分譲住宅
40万円の補助金対象 ※
(2025年度「子育てグリーン住宅支援事業」)
※国の予算がなくなり次第終了
補助金を受ける場合は別途費用が必要です。
詳細はスタッフへお尋ねください。
所在地
福井県鯖江市杉本町 (MAP)
交通
サンリーブ前(上杉本) 徒歩約2分
福井鉄道福武線「神明駅」徒歩約23分
販売価格
2,928万円
小学校 / 中学校
立待小学校/中央中学校
区画数
【総区画数】5区画、【販売区画数】1区画
【鯖江市エリア】
情報提供日:2025年11月30日
次回情報更新日:2025年12月14日
物件のおすすめポイント
-
子育てしやすい環境
吉江保育園まで徒歩約6分
立待小学校まで徒歩約4分
近くに公園があり、お子様がのびのび遊べます! -
通勤・通学に便利な立地
旧国道8号線近くで福井・武生方面へのアクセス◎
つつじバス「サンリーブ前(上杉本)」停留所まで徒歩約2分 -
緑豊かな住環境
ご家族のレジャーにぴったりな西山公園まで車で約10分!
夏にはプールも!ふくい健康の森まで車で約10分
物件コンセプト
-
ZEHを超えるトリプルガラス標準の高性能分譲住宅
40万円の補助金対象 ※
(2025年度「子育てグリーン住宅支援事業」)
-----------------------------------------------
分譲住宅とは思えない高性能。
タキナミの分譲住宅が実現する、
年中快適な暮らしをすべての世代へ。
●ZEH基準を大きく上回る、最先端の省エネルギー性能。
●ヒートショックや結露を防ぎ、健康に配慮した設計。
●未来を見据えた資産価値と、揺るぎない安心を。
-----------------------------------------------
※国の予算がなくなり次第終了
補助金を受ける場合は別途費用が必要です。
詳細はスタッフへお尋ねください
物件詳細概要
所在地
福井県鯖江市杉本町 (MAP)
交通
サンリーブ前(上杉本) 徒歩約2分
福井鉄道福武線「神明駅」徒歩約23分
販売価格
2,928万円
月々支払い
65,378円
小学校 / 中学校
立待小学校/中央中学校
区画数
【総区画数】5区画、【販売区画数】1区画
周辺環境
-
バロー神明店
(約1,500m/徒歩19分)
-
albisさばえ鳥羽店
(約2,300m/徒歩29分)
-
ファミリーマート鯖江ただす店
(約1,000m/徒歩13分)
-
立待小学校
(約280m/徒歩4分)
-
中央中学校
(約1,930m/徒歩25分)
-
吉江保育園
(約440m/徒歩6分)
-
立待保育所
(約700m/徒歩9分)
-
高村病院
(約1,690m/徒歩22分)
-
公立丹南病院
(約1,810m/徒歩23分)
-
吉江郵便局
(約560m/徒歩7分)
-
北陸銀行神明支店
(約1,530m/徒歩20分)
-
福井信用金庫神明支店
(約1,590m/徒歩20分)
アクセスマップ
ゼロスマ・ゼロスマZEH
土地付建物分譲
鯖江市杉本町 ゼロスマタウン D棟
直線的なデザインの外観で、
流行を取り入れながらおしゃれで明るい雰囲気と機能性を兼ね備えたデザイン
お支払い例
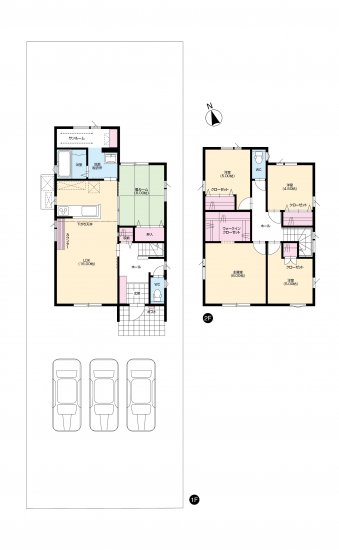
物件詳細
| 販売価格 | 2,928万円 | ||
|---|---|---|---|
| 所在地 | 福井県鯖江市杉本町16字7-3-5 (MAP) | ||
| 交通 |
サンリーブ前(上杉本) 徒歩約2分 福井鉄道福武線「神明駅」徒歩約23分 |
||
| 土地権利 | 所有権 | 地目 | 宅地 |
| 敷地面積 | 公簿247.96m²(75.00坪) | 建物面積 | 壁芯116.98m²(35.38坪) |
| 都市計画 | 非線引区域 | 用途地域 | 指定なし |
| 建ぺい率 | 60% | 容積率 | 200% |
| 法律上の制限 | 景観法 | 地勢 | 平坦 |
| 許認可番号 | 確認建築番号:第R07確認建築福井住セ00165号 | ||
| 設備 | |||
| 現状 | 未完成 | 建物完成時期 | 2026年01月 |
| 接道状況 | 公道 | 構造 | 木造 |
| 小学校 / 中学校 | 立待小学校 / 中央中学校 | ||
| 販売予定時期 | 販売中 | 取引形態 | 売主 |
| 引き渡し可能年月 | 2026年3月 | 取引条件有効期限 | 2027年1月 |
| 備考 | |||




